Publicado: 2026-01-31





Ver más fotos
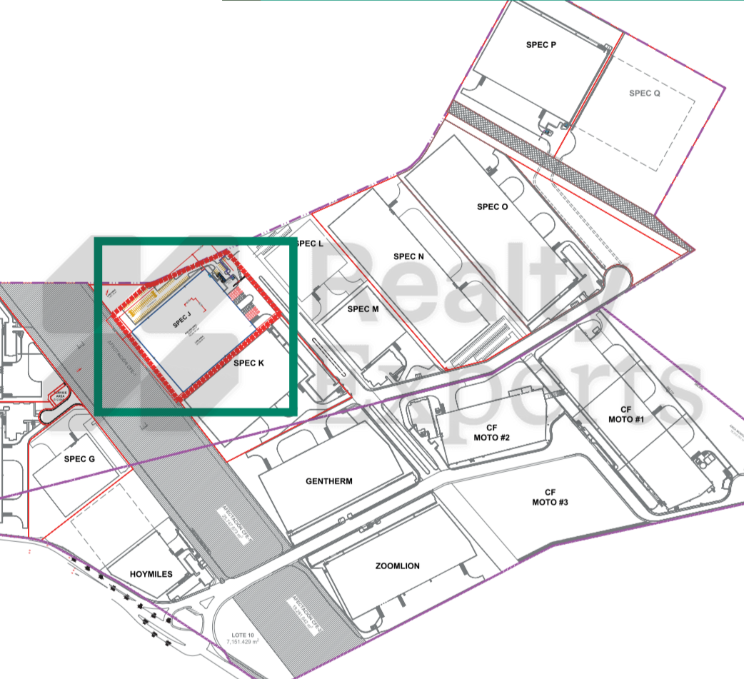
Bodega en Renta en Apodaca
USD 126,357.00
Datos de la propiedad
Bodega en Renta en Apodaca
USD 126,357.00
| Terreno | 30236 m² |
| Construcción | 18051m² |
| Frente | 121 m |
Descripción
Renta bodega de 18,051 m2 zona Apodaca
Descripción completa
- Bodega de 18,051 m2 a $ 7 dlls/m2 ( sujeto a cambios y condiciones )
- Terreno de 30,236 M2
- Bahía 14.75 m x 24.18 m
- 6 + 4 Docks y una rampa
- Altura mínima 9.14 mts ( 30' )
- Subestación BTS
- Firme 6 pulgadas ( 15 cm )
- 120 lugares de estacionamiento
- Lista para Octubre 2024
General
30236 m²
18051 m²
120
9.14
Equipamiento
Amenidades
zona industrial
Col. Sin Colonia, 66643, Apodaca, Nuevo León, México
¿Te interesa esta propiedad?
¡Ponte en contacto con nuestros asesores, con gusto te atenderemos!
¡Ponte en contacto con nuestros asesores, con gusto te atenderemos!
